Property Features
Cemetery Road, Winterton, Scunthorpe, North Lincolnshire, DN15 9UG
About the Property
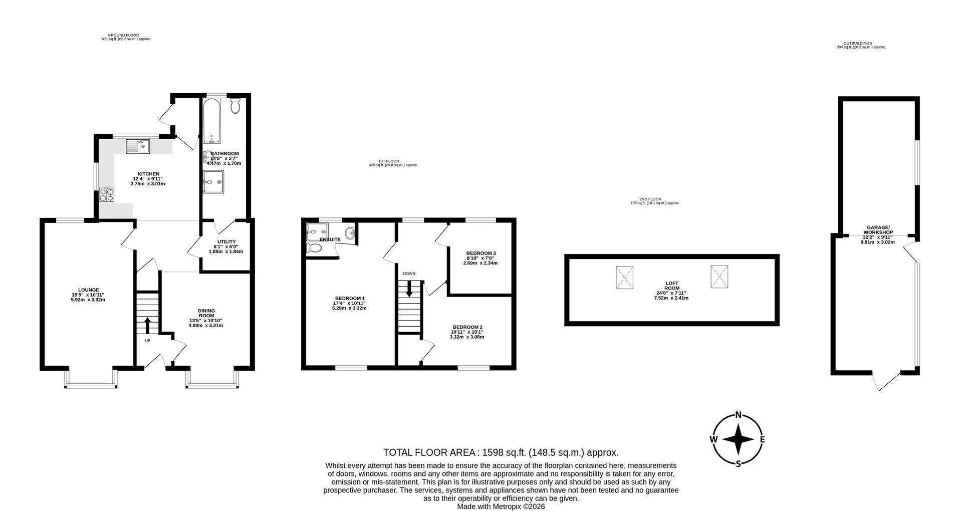
If you want a character home with a huge garden, or potential to extend this is a great opportunity to get a detached three bedroom house in a great location with a long private plot. The owners have completed some upgrades including a new roof and very useable loft space.
Sat within the popular township of Winterton this 1930s double fronted home stands very well. Inside there are two main reception rooms, an open plan kitchen, downstairs bathroom and upstairs there are three good size bedrooms, the main having a shower room and then access to the loft space which was completed alongside the recent new roof.
There is access at the side via double gates to the garage and workshop which is a great space and the garden stretches away from the house and is very private with an orchard area at the bottom, please check the floor plan for sizes. This is available to view by appointment, please get in touch to book.
- Double fronted period home on a great plot
- Three bedrooms and loft room
- Downstairs bathroom and first floor shower room
- Fantastic plot with a long private garden
- Garage and workshop space
- Popular township location
- EPC D
- Council Tax band C



























